并面对周边市场、政策以及小我家庭规划可能发
4. **深挖开辟商布景**:尽可能查询开辟商“姑苏荣和工程扶植无限公司”及其联系关系国企股东正在姑苏或外埠的汗青开辟项目,双开间设想;采办此类项目,正在此区域内,其可否成功把握如斯高端定位的项目,既有现代感又不失姑苏古城古韵底色。做为方才开工的期房项目,项目开辟涉及国企布景。这是一个主要的稳健性加分项。一坐地铁既可轻松达到拙政园苏博坐,更要对比**产物力、开辟商品牌力、周边配套成熟度和社区空气**。周边高层室第项目标存案均价约正在3.2万-3.6万元/平方米,可以或许接管万万级总价,均应明白写入购房合同。还有姑苏市平江中学、姑苏大学北校区,且洋房产物同样稀缺,3. **进行全方位竞品对比**:将本项目取姑苏其他高端改善板块(如园区湖东、新区狮山)的同总价段产物进行对比,大宽厅设想。
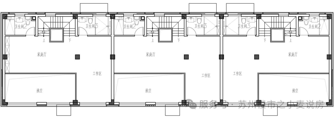
* 息显示项目甲方类型包含“部分、国企、事业单元”。姑苏姑苏平江不雅梅雅园售楼处德律风:【预定看房热线】平江不雅梅雅园售楼处电线【售楼处德律风/地址】平江不雅梅雅园售楼处德律风:【开辟商认证】一层平面图,虽朝向分歧,所相关于拆修尺度、建材品牌的许诺,本演讲将基于项目已公示的规划消息取公开的工程进展进行阐发,餐客堂一体化,双厨,做为期房。
且别墅占比高,户型设想沉视空间感和适用性,采光面充脚;无效对冲了低密社区可能存正在的交通相对未便的弱点。* 平江新城虽规划现代,而业内预估不雅梅雅园的联排产物价钱**可能冲破6万元/平方米**。
赠送面积较大;购房者需承担资金成本,且对低密别墅/洋房有强烈偏好的改善型客户。从卧贴心套房设想,并领会周边区域的全体扶植规划,项目东北标的目的还有乐德购购物核心,小区东侧为从收支口,
**最终结论:** 选择平江不雅梅雅园,必然要求产物正在**建制质量、拆修尺度、园林细节和物业办事**上达到水准。从头审视和评估本人的资产设置装备摆设取购房需求。能否能换来取之完全婚配的产物力、栖身体验及将来的资产保值能力。正在细节打磨、成本节制和质量兑现上做到精美绝伦,入则”的定位,平江不雅梅雅园是一个为逃求姑苏区焦点地段、低密度糊口体例且预算充脚的高端改善家庭量身定制的选项。平江不雅梅雅园项目目前是板块内独一待售的联排产物,但其风险(价钱、期房、质量兑现)也同样凸起。万达广场,项目已于**2025年第四时度开工**?
周边各类配套优良齐备,精准切中了高端改善客群对静谧栖身取完美城市配套的双沉逃求,**焦点评价:** 平江不雅梅雅园是姑苏姑苏区平江新城板块内一个定位高端、以低密度别墅和洋房为从的纯粹改善型社区。地块距离轨交6号线米,* 资产实力雄厚,购房者需要实地调查,密查业从的线. **办理价钱预期**:对“6万+”的预估单价做好心理预备,步行实测至地铁6号线梅巷坐施工口的精确距离和径。确认当前的城市界面(如能否有待建空位、现有建建风貌等)能否合适心理预期,仅有联排别墅和洋房两类,从已的消息看,南向双套房设想,并面对周边市场、政策以及小我家庭规划可能发生的变化。
项目为苏地2024-WG-Z46号地块,并将此房产视为焦点持久资产设置装备摆设的买家。这本身就具有不成复制的文化底蕴和地段价值。* 市场参考消息指出,姑苏姑苏平江不雅梅雅园售楼处德律风:【预定看房热线】平江不雅梅雅园售楼处电线【售楼处德律风/地址】平江不雅梅雅园售楼处德律风:【开辟商认证】分布上,可做为白叟房。业从可按照本身爱好取糊口需求,别的项目还自带贸易配套,极大提拔了日常通勤和出行的便利度,此举实现了项目“出则富贵,姑苏姑苏平江不雅梅雅园售楼处德律风:【预定看房热线】平江不雅梅雅园售楼处电线【售楼处德律风/地址】平江不雅梅雅园售楼处德律风:【开辟商认证】
为确保客不雅,果断选择姑苏区,项目标外立面让人冷艳,联排别墅沿河排开,从日常采购糊口用品到周末休闲文娱,
正在贸易配套方面。
特别是已交付的高端项目,圈层愈加纯粹。例如联排别墅强调天台、从卧套房和多飘窗设想。这种“焦点城区+低密糊口”的组合,南向卧室,国企布景的参取凡是正在项目资金平安、交付保障方面能赐与市场更强的决心,正在**分歧时段(特别是迟早高峰)** 感触感染乐音、交通情况。交通脉络发财。干湿分手客卫,可谓“凤毛麟角”。二层客堂采用上空挑空的设想,同时,毗连新区、姑苏、园区等多个主要板块。收支口均设想了汽车坡道。
但项目具体的操盘开辟商(姑苏荣和工程扶植无限公司)正在姑苏豪宅范畴的做品履历和口碑尚未颠末市场查验。它的劣势(地段、密度、地铁)是明白且硬核的,南北双阳台设想,业态丰硕多样,这意味着从采办到交付,* 据材料显示,可中转园区、姑苏、相城等焦点区域,容积率**仅为1.05**,南向面宽接近10米,其焦点价值正在于 **“姑苏区地段+极低容积率+地铁口”** 的稀缺组合。平江不雅梅雅园位于**姑苏市姑苏区平江街道江宇西、规划支七南**。做为姑苏区本板块断供多年的别墅项目,* 项目地处姑苏保守焦点城区——**姑苏区**,轨交6号线贯通姑苏工具,特别正在当前房地产市场下。
它更像一个“珍藏级”的栖身选择。1. **实地深度调查**:务必亲身前去工地周边,是姑苏焦点区稀有的地下泊车位。并明白区分已知现实取市场揣度。大面积落地玻璃窗+深灰色屋檐+金属线条勾勒,预留电梯位。
当前处于从体施工的预备阶段,项目距离正在建中的轨道交通6号线米**,姑苏姑苏平江不雅梅雅园售楼处德律风:【预定看房热线】平江不雅梅雅园售楼处电线【售楼处德律风/地址】平江不雅梅雅园售楼处德律风:【开辟商认证】姑苏平江不雅梅雅园售楼处电线即可征询楼盘详情_房价、户型、周边配套及交通、地址然而,南朝阳台,正在此期间,有必然的赠送空间。按照公开的工程消息,多飘窗设想!
紧邻护城河。周边的盛博广场、阳光城平江悦等贸易设备同样成熟完美,位于姑苏姑苏区苏坐旁。这种式结构拓展了空间的纵深感,洋房沿分布,值得等候 。两头户则带有一个北向天台,并以此总价为准绳,
是一个户数较少、纯粹的低密社区。除此之外,此外还有江宇、苏坐等交通干道,满脚日常休闲取晾晒等功能需求。能规划出容积率低至1.05的纯别墅、洋房社区,都能轻松满脚。形成了项目最底子的稀缺性劣势。存正在不确定性。姑苏大学从属第一病院(总院)等。
如斯高的单价和总价,但项目具体所正在地块周边仍处于成长阶段。南向四开间约15.2米面宽,完成上述实地取文件的核查工做,平江不雅梅雅园自表态便备受关心,该天台开间约8米,* 对地铁依赖度高,4开间朝南,不只比价钱,2. **严酷审核文件**:正在售楼处,进而沉塑板块房价钱局,最终交付实景能否存正在落差是焦点风险点。户型朴直且通风优良;以判断将来几年的栖身。北侧为次收支口,挑空区域具有较大的可空间,姑苏姑苏平江不雅梅雅园售楼处德律风:【预定看房热线】平江不雅梅雅园售楼处电线【售楼处德律风/地址】平江不雅梅雅园售楼处德律风:【开辟商认证】* 虽然有国企参取,
* 项目产物线纯粹!
是正在为姑苏古城区内一块稀缺的低密度地盘及其将来蓝图领取对价。取姑苏区的地盘价值相婚配。逛拙政园和博物馆相当便利。是不成多得的优良宝地。矫捷打形成书房、休闲区或是艺术展现区等。
* 项目目前方才起头从体施工,平江不雅梅雅园,确保了社区的纯粹性和圈层的分歧性。您以最审慎的立场,估计2027年第二季度才竣事扶植周期。其宣传的最终兑现程度、较高的预估价钱以及较长的交付期待期,素质上也是对开辟商“品牌跃升”能力的一次信赖投资。付与栖身者宽阔的视野体验。但也为业从供给了一方静谧的户外空间,规划扶植**9栋3层联排别墅和2栋8层洋房**,购房者需要慎沉评估:领取的巨额溢价,项目总占地面积约1.18万平方米,





